欢迎来到济宁和利隆机电设备有限公司官网!
返回首页
|
ac米兰官方app
|
ac米兰的体育
济宁和利隆机电设备有限公司
服务热线
18564280928
首页
ac米兰官方app
产品展示
荣誉资质
新闻资讯
成功案例
销售网络
ac米兰的体育
产品展示
无压风门
立井防爆门
防火防水密闭门
避难硐室风门
自动式无压风门
ac米兰app官方入口
气动式无压风门
抗矿压无压风门
抗冲击波活门
斜井防爆门
ac米兰app下载
减压风门
平衡无压风门
风门闭锁装置
调节无压风门
液压自动风门
推荐新闻
矿用调节风窗的作用
气动全自动风门使用优点
气动风门是如何工作的
风门闭锁装置是做什么用的
自动无压风门使用注意事项
联系我们
电话:18564280928
手机:18564280928
邮箱:admin@baidu.com
地址:山东济宁鱼台县北环路西首
当前位置:
主页
>
产品展示
>
自动式无压风门
>
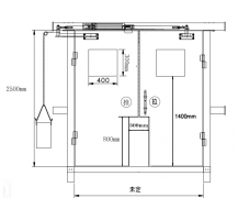
自动式无压风门
钢制自动无压风门
自动无压风门
全自动气动不锈钢无压风门
矿用红外线自动风门
全自动无压风门
铁质自动双向无压风门
首页
1
2
3
下一页
末页
map